優質的服務流程
· quality of service processes ·

需求溝通傾聽客戶需求,了解用戶使用環境和現場工況
方案設計根據現場實際工況,針對性出具解決方案
合同簽訂技術和商務規范確認,簽訂合作協議
產品制作選擇最優質的元器件,嚴格按照技術協議
調試安裝現場規范安裝,靜態動態調試,分析儀運行
售后服務后續維護,持續跟進,終身維修

全國熱線
銷售熱線
公司地址山東濟南市槐蔭區太平河南路1567號均和云谷濟南匯智港6號樓
第1章 項目介紹
山東新澤儀器有限公司生產的 TK-1100 型氨逃逸在線監測系統采用高 溫伴熱抽取技術,對脫硝過程中的逃逸氨進行連續在線監測,系統由取樣及 傳輸單元、預處理及控制單元、分析單元三部分構成, 主要應用于眾多工業 領域氣體排放監測和過程控制, 例如:燃煤發電廠、鋁廠、鋼鐵廠、冶煉廠、 垃圾發電站、水泥廠和化工廠、玻璃廠等。
分析儀采用 TDLAS 技術(可調諧半導體激光光譜吸收技術Tunable Diode Laser Absorption Spectroscopy),為目前國際最先進的氣體測量方 法之一, 該儀表具有靈敏度高、響應速度快、不受背景氣體干擾、非接觸式
測量等特點,為實時準確地反映 NH3 變化提供了可靠保證。
1 、項目總則
本技術附件闡明了在############鍋爐脫硝用氨逃逸在線檢測儀工程項目 中關于分析儀表以及配套樣品系統的技術方案, 并約定了買賣雙方的職責及工作 范圍。需方提供本項目現場工藝參數、公用工程和其他配合條件, 供方按本協議 要求提供設備和技術服務。供方保證完全遵照技術規范的要求, 所提供的系統完 全滿足國家(行業)標準規格要求,能在工藝流程上長期滿意的運行。
本技術附件作為商務合同附件, 經甲乙雙方簽字后生效,生效后的版本將作
為商務合同的技術附件,與商務合同具有同樣法律效力。
2 、概述
根據############鍋爐脫硝用氨逃逸在線檢測儀招標要求, 本技術方案詳細 說明了所有 TK-1100 型氨逃逸監測系統在 SCR/SNCR 脫硝及煙氣排放工程中應用 的技術細節。所配置的產品基于工藝參數, 在技術性能上滿足買方工藝參數限定 的測量要求。
我們提供的所有分析儀及附件和附屬設備的制造質量、供貨、技術規格, 文 件的圖紙資料、技術服務、工程服務、包裝運輸、開箱檢驗、安裝指導、現場調 試、設備調試運行等各個環節負有完全責任。
我們提交的技術文件遵守本項目的標準、規定和本詢購文件的要求, 并保證 供貨商及相關的文件也遵守本項目的標準、規定和本詢購文件的要求。
3 、項目方案及優勢
由于工況惡劣,樣氣中含有大量粉塵及飽和水蒸氣,我們采用當前最先進 的 TK-1100 型激光氣體分析儀(基于 TDLAS 技術) 分析微量 NH3。系統(包括測 量池) 采用全程加熱, 保證樣品氣體溫度, 防止有水析出而對 NH3 的大量溶解影 響分析結果。探頭采用電加熱過濾探頭, 在取樣出來就完成樣品的凈化, 減小了 后級預處理的負荷, 大大降低了器件的故障率。系統設計有探頭自動反吹程序及 儀表自動標零程序,正常運行后僅需要正常的巡檢即可。傳輸管線采用定制 230℃以上高溫復合電伴熱管纜,并控制在 2m 以內(確保盡量少的 NH3 吸附), 整個預處理全部集成在高溫加熱盒內, 系統緊湊以避免長距離傳輸管路對 NH3
的吸附。
4、方案產品比較
與傳統的分析方式相比較,系統有以下明顯優勢:
01.利用半導體激光良好的單色性,避免背景氣體吸收的干擾;
02.利用半導體激光波長的可調諧性解決粉塵、視窗污染對測量的影響;
03.實地測量,氣體信息不易失真,響應速度快,便于對生產過程進行控制;
04.系統支持自動校準,減少人工維護;
05.儀器無運動器件,可靠性高,維護方便,運行費用接近于零(僅為電費);
06.可自動修正環境溫度、壓力變化對測量的影響,確保測量精度;
07.非接觸測量,有非常強的高溫、高粉塵和強腐蝕等惡劣工業環境的適應能力;
08.往復回返式長光程的分析儀測量池,確保分析靈敏度的同時又大大減小了儀器的體積; 09.全程180C以上伴熱保溫,熱法測量,避免樣品中水分冷凝吸收NH3;
10.系統緊湊,結構精巧,便于現場安裝;
11.系統自動化程度高,便于長期穩定運行,維護量小。
第2章 項目設計依據
乙方所提供的分析儀系統遵循下述標準和規范:

第3章工作范圍
乙方工作范圍
在線分析系統的內部設計;
分析系統的運輸和現場開箱驗收工作;
指導甲方進行分析系統的安裝和調試;
系統安裝完成后對甲方人員在現場進行儀表培訓:基本操作和日常維護知識。
甲方工作范圍
提供正確完整的工況數據表,以便于乙方設計在線分析系統;
負責提供在線分析系統公用工程條件,并負責分析系統的現場安裝和相關公 用條件的施工建設,例如公用工程管線(電源、電信號)等的敷設;
第4章 項目設計方案
4.1 測量項目
測量參數:NH3;
4.2 測量位置
測量位置:SCR 脫硝反應器出口
4.3 測量方法
? 煙氣采樣方法:高溫抽取式;
? NH3 測量方法:可調諧半導體激光光譜吸收技術 TDLAS;
4.4 系統特點
氨逃逸在線監測主要具有以下技術優勢: ? 可靠的長光程加熱氣室設計,光程可達 3 米 ? 超低濃度測量,分辨率可達 0.1ppm
? 特殊的多線光譜掃描算法,動態的粉塵和水份干擾補償
? 免標定設計,維護簡單,使用成本低
4.5 典型應用
? SCR/SNCR 脫硝工藝控制
? 發動機尾氣排放控制
? 大氣環境監測
? 化工工藝控制
第5章系統配置清單


第6章 系統組成部分介紹
6.1 取樣探頭

SNI-1010 型取樣探頭用于本系統的樣氣采樣,具有濾塵和伴熱的功能,可以有效的防止采集的樣氣的冷凝,獨特的結構設計使采樣系統更加可靠,樣氣丟失率更小,保證分析系統的穩定和真實。
6.1.1產品特點
該裝置與樣品接觸的部分全部采用316L不銹鋼材料加工制成,高溫條件下 抗腐能力很強。配制防雨罩完全可以勝任室外工作環境。
■在設計上采用等溫加熱體,結構緊湊,加熱溫度穩定。
■過濾器濾芯采用SiC陶瓷過濾器,具有過濾面積大,過濾精度高等特點, 更換時可將其從裝置中整體拉出,操作簡單,無需工具,大大地縮短維 護更換的時間,并降低了勞動強度。
■該裝置除設有一樣氣輸出口外,還設置有一個可復用的反吹/校準口, 在配置時可靈活安排氣路。
■操作簡單,帶有低溫報警.
■ 濾芯更換無需工具 。
■開關方便,帶扣鎖保護罩
■高效過濾清潔系統
6.1.2技術參數
■最高采樣溫度: 300°C
■最大工作壓力: 5bar
■采樣腔加熱溫度: 200C (出廠設定,溫度可調)
■電源: 220VAC 50/60Hz 400W
■環境溫度:一20~80°C
■最大粉塵濃度:100g/m3
■陶瓷濾芯過濾精度: 2^ m (其它精度可選,1-10M m)
■濾芯尺寸:150*40/20mm
■反吹氣接口: OD8/6卡套式接頭。
■采樣氣出口: OD8/6卡套式接頭
■含采樣探桿:C25X 1200mm/長度可選
■安裝附件:安裝法蘭盤對裝法蘭盤安裝螺栓法蘭盤密封平墊
6.2預處理及控制單元

6.2.1 工作流程
如系統流程圖所示, 樣氣經采樣探頭, 由采樣伴熱管輸送至預處理單元, 預 處理單元包括常閉型高溫閥 SV1, 精密過濾器、射流泵, 其中 SV1 閥用于在停止 采樣時切斷氣路, 精密過濾器用于進一步凈化樣氣, 去除樣氣中的粉塵等, 射流 泵則用于提供樣氣傳輸時的動力, 系統由 PLC 控制實際自動周期采樣及吹掃。所 有樣氣流經元件及管路均置于恒溫加熱盒中, 防止管路被銨鹽堵塞, 減少樣氣損 失。
6.2.2 技術參數
機柜: 1200H×850L×400Wmm,防護等級 IP65;
材質:采用 2mm 鋼板靜電噴涂;
控制系統:采用 PLC 控制,實現自動采樣、吹掃、故障報警等;
射流泵:使用 0.2-0.6MPa 壓縮氣源經預加熱后進入射流泵產生采樣動 力, 采樣流量最大8L/min,316L 材質, 防腐蝕, 無機械部件, 保障長時 間穩定運行,;
除塵:經過采樣探頭除塵的氣體再經過一級 0.2um 級過濾器再到氣體分 析儀,確保分析儀的長期穩定運行;
加熱: 所有樣氣流經元件及管路均置于恒溫加熱盒中,加熱控制溫度 190℃;
系統供電:AC220V,3000W。
6.3 激光 NH3 分析單元

6.3.1 測量原理
激光氣體分析儀的測量原理是可調諧半導體激光光譜吸收技術 Tunable Diode Laser Absorption Spectroscopy),TDLAS 最早于 20 世紀 70 年代提出。 初期的 TDLAS 技術只是一種實驗室研究用技術,隨著半導體激光技術在 20 世紀 80 年代的迅速發展,特別是 20 世紀 90 年代以來,基于 TDLAS 技術的現場在線 分析儀表已逐漸發展成熟, 能夠在各種高溫、高粉塵、高腐蝕等惡劣的環境下進 行現場在線的氣體濃度測量。
可調諧半導體激光光譜吸收技術 TDLAS 本質上是一種光譜吸收技術,通過 分析激光被氣體分子的選擇性吸收來獲得氣體的濃度。它與傳統紅外光譜吸收技 術的不同之處在于,半導體激光光譜寬度遠小于氣體吸收譜線的展寬,因此, 半導體激光吸收光譜技術是一種高分辨率的光譜吸收技術。系統采用特定 波長的激光束穿過被測氣體, 激光強度的衰減與氣體的濃度滿足朗伯.比爾定理, 因此可以通過檢測激光強度的衰減信息分析獲得被測氣體的濃度。采用半導體激 光吸收光譜技術的激光氣體分析儀可從原理上抗背景氣體的干擾, 測量結果可靠 性高。
6.3.2 產品優點
不受背景氣體的影響
傳統非色散紅外光譜吸收技術采用的光源譜帶很寬, 其譜寬范圍內除了被測 氣體的吸收譜線外, 還有很多基他背景氣體的吸收譜線。因此, 光源發出的光除 了被待測氣體的多條譜線吸收外還被一些背景氣體的吸收, 從而導致測量的不準 確性。 而半導體激光吸收光譜技術中使用的半導體激光的譜寬小于 0.001nm, 遠小于被測氣體一條吸收譜線的譜寬。如圖 2-1 所示的“單線吸收光譜”數據。 同時在選擇該吸收譜線時,就保證在所選吸收譜線頻率附近約 10 倍譜線寬度范 圍內無測量環境中背景氣體組分的吸收譜線, 從而避免這些背景氣體組分對被測 氣體的交叉吸收干擾,保證測量的準確性。
不受粉塵干擾
如圖 2-1 激光氣體分析儀通過調制激光器的頻率使之周期性地掃描被測氣 體的吸收譜線, 激光頻率的掃描范圍被設置為大于被測氣體吸收譜線的寬度, 從 而在一次掃描中包含有不被氣體吸收譜線衰減的圖 2-1 中的黃綠區( 1 區) 和被 氣體吸收譜線衰減的紅色區(2 區) 。從 1 區得到的測量信號包含粉塵和視窗污 染的透過率, 從 2 區得到的測量信號除包含粉塵和視窗污染的透過率還包含被氣 體吸收的光強衰減。因此, 通過在一個激光頻率掃描周期內對 1 區和 2 區的同時 測量可以準確獲得被氣體吸收衰減掉的透光率, 從而不受粉塵及視窗污染產生光 強衰減對氣體測量濃度的影響。
6.3.3 技術指標
1 .測量參數

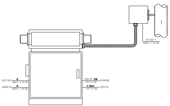
第7章 氨逃逸系統安裝
7.1 系統安裝總圖

7.2 取樣探頭安裝
焊接對裝法蘭
在工藝管道上開孔,開孔尺寸 60mm,將預裝法蘭套件焊接在工藝管道上,
安裝方式如下圖所示:

固定采樣探頭
安裝法蘭的固定孔與對裝法蘭相對應。將采樣器的安裝法蘭通過螺栓固 定在對裝法蘭上, 如下圖。固定時須注意檢查安裝法蘭與對裝法蘭密封面相 對應, 同時在安裝法蘭和對裝法蘭之間必須有密封墊圈, 防止采樣器出現泄 漏影響煙氣分析的真實值。

7.3 機柜安裝

7.4 氣路連接

7.5 電路連接
電路安裝所需電纜信息見下表,具體接線請參照電氣接線圖紙。

第8章 系統操作
8.1 系統上電
上電前應做好以下檢查:
外觀檢查:確認分析柜內部件齊全,無損傷
電氣連接檢查:對照接線圖檢查接線是否正確可靠
電源檢查:用萬用表確認電源電壓為 AC220V
管線連接檢查: 確認所有管線均正確敷設, 并已與系統對應接口正確連 接,包括:采樣管線、尾氣排放管線、壓縮氣管線等。

8.2 系統運行
確認所有閥門處于正確位置,確認壓縮氣源壓力正常, 按下柜內啟動按鈕, 系統即可投入自動運行。系統包括三種工作狀態:
采樣狀態: 在此狀態下, 射流泵、采樣截止閥開啟, 樣氣由采樣探頭經 伴熱管進入系統,儀表實時反映當前 NH3 濃度;
反吹狀態: 系統每采樣 2 小時執行一次探頭吹掃操作,此時,射流泵、 采樣截止閥關閉, 探頭箱反吹閥開啟, 壓縮氣進入探頭對濾芯進行吹掃。 也可在停止狀態時,按反吹按鈕執行反吹操作;
報警狀態:當系統有以下情況時, 將停止系統正常工作流程, 發出報警信 號, 報警信號燈亮, 包括伴熱管溫度低、加熱箱溫度低、壓縮氣源壓力 低。
再次按下啟動按鈕時,啟動按鈕彈起,系統可停止。
8.3 儀表操作
8.3.1 測量界面
系統上電后儀表自動進行測量界面,如下所示:

8.3.2 設置界面

8.3.3 標定界面

按下 CALI 鍵,儀表進入標定界面,此時系統應處于停止狀態,將標定閥置 于開狀態,通入相應標氣,即可對儀表進行標定操作。標定量程點時,通過 方向鍵將游標移至上圖所示 20.00 處, 按 ENT 鍵, 游標閃爍, 可輸入標氣的 實際濃度值, 然后再按 ENT 鍵確認。當測量值穩定后, 再將游標移至 SAVE SPAN 處, 按 ENT 鍵, 彈出確認框, 選擇 YES 即可保存標定記錄。零點標定 與量程標定方法相同。 標定時需注意:
系統應處于熱穩定狀態;
標定流量應穩定在 2L/min。
第9章 日常維護
9.1 系統維護

9.2 儀表維護
儀表維護主要包括儀表標定和鏡片清洗,由于本儀表采用穩定的激光光源, 儀表長期穩定性較好, 所以一般出廠標定后, 在現場可不需再次標定, 僅當對測 量有疑問時可執行此操。
鏡片清洗工作是本儀器在現場使用過程中需要進行的主要維護工作, 當光強 降到 80%以下時, 即應進行此操作, 正常情況下, 操作周期在 3 個月左右。鏡片 清洗時需停止儀表工作, 先拆下兩端儀表端蓋, 然后取下鏡框進行清洗, 清洗時 用干凈紙巾揩清水輕輕擦拭即可, 取下鏡框時應戴手套, 以免高溫燙傷。鏡片裝 配圖如下:

第10章 項目執行
10.1 工程計劃表
下述工程計劃表為一般情況下計劃周期。具體計劃周期, 根據實際商務合同 而定。
工作內容 甲方 乙方
時間節點
合同簽訂 √ √ 7 天
企業準備 √ 15 天
系統集成 √ 30 天
系統安裝 √ 指導 1~2 天
系統調試 參與 √ 1 天
系統測試驗收 √ √ 1 天
工程準備
工程前期準備分三部分進行: 明確雙方權利和義務并簽訂合同; 現場勘察和 企業準備、系統設計、集成安裝和調試,聯網以及運行。
人員準備
在線監測工程的專業公司配有電子儀表、計算機軟件、通訊網絡專業技術人 員, 具有雄厚的技術實力。為了及時優質完成煙氣在線監測項目, 公司將抽調由各專業技術骨干組成的強有力的工程項目部。
技術準備
工程項目部根據以往在線監測系統工程的經驗, 專門對本次在線工程的技術 路線和規范要求, 儀器設備的防雷, 除水、以及現場情況、計算機軟件功能和應 用、數據傳輸和通訊模式等關鍵技術都作了反復研究論證, 從技術上作了充分的 準備。
10.2 用戶培訓
我公司歷來十分重視用戶培訓工作, 通過對用戶技術人員的培訓, 公司與用 戶進一步了解和溝通, 同時, 公司通過培訓用戶技術人員, 聽取用戶意見, 了解 用戶的需求,以便公司進一步提高產品質量,為用戶提供更優質的服務。
為了使業主的工作人員能完全掌握煙氣連續在線監測系統的工作程序、操作 規范、運行規范、常規維護等基本知識, 我公司將在充分征求用戶意見后編制一 套完整的培訓計劃和培訓課程大綱,提供培訓所需的教材并指派工程師講解說 明,并負責對業主操作及維護管理人員進行包括煙氣連續在線監控系統的使用、 系統和設備的操作和維修的全面培訓。通過講授系統的性能、結構原理、維護管 理技術及上機實際操作等培訓, 使甲方人員能獨立進行管理、運行、故障處理及 日常測試維護,確保系統能正常安全運行。
我公司提供的培訓指導人員污染源在線監控領域都具有豐富的應用和維護 經驗。未經業主項目代表批準, 不得隨意更換已確定的培訓指導人員。如果業主 認為培訓指導人員不合適可要求更換。
所有本項目有關的員工和將來的操作員都將根據項目的要求進行充分的培
訓,滿足系統的設計和維護的需要。
a.現場培訓
培訓目的:培養儀表間的日常操作人員,掌握設備的日常操作與維 護。
培訓對象:業主單位現場操作人員,有一年以上相關儀器設備操作 維護經驗。
培訓地點:設備安裝現場。
b.集中培訓
時間安排 系統調試完成后培訓:系統安裝調試完成后由甲方參與進行。
培訓教材
相關設備使用說明書。
培訓方式
專業技術人員授課、現場實際操作演示與指導。
培訓地點
設備安裝現場。
c.培訓內容
系統基本原理和操作規范;
系統的工作流程及注意事項;
常規維護的基本知識;
一般性故障處理;
軟件操作培訓;
d.培訓講師
現場培訓由我公司現場工程師負責實施。
10.2.1 驗收測試
系統安裝調試完畢后 1 天內由甲方進行驗收;驗收方式為將標氣通入儀器, 若儀器測量結果在儀器的測量誤差內, 視為驗收合格; 系統驗收合格, 甲方在《現 場服務確認單》上簽字生效; 如系統安裝調試完畢后甲方未簽字且一周內未提出 書面疑義的,視為系統驗收合格。
10.3 質量保證
10.4 質量保證期
質保期為分析儀制造商發貨之日起 13 個月或系統驗收之日起 12 個月, 二者 以先到時間為準。
非因乙方產品自身存在的品質質量問題引起的問題均不在質保范圍內, 超過 質保期或者在質保期內發生如下故障,均屬于保外維修,不提供免費保修服務, 故障包括但不限于:
1)由于使用不當(進水、腐蝕、失火、強電串入等); 2)不可抗力(地震、雷擊、洪水等)造成的損壞; 3)未經允許,產品內部擅自改動; 4)現場不符合設備使用環境要求的; 5)未按照要求進行操作、維護、保養的; 6)其他未按用戶手冊及培訓規定使用,引起產品損壞的。
10.5 性能保證
乙方提供的系統是先進、可靠、有效和完備的。在質保期內, 乙方負責更換 有故障的器件。
標氣、濾芯等消耗品不在此質保范圍之內。
10.6 質量保證
根據甲方技術要求,乙方做以下保證:
保證所供設備為全新的;
保證所供設備的設計、制造是無缺損的、完整的;
保證所供設備能夠在本次招標文件指定環境現場正常運行,數據準確、 穩定、可靠;
保證所供設備在使用正常壽命期限內能夠正常運行,令甲方滿意;
保證提供現場指導安裝、調試、直至設備投運的完整服務;
保證所供資料真實有效,設備的操作與維護可完全按乙方所供資料進行 操作維護;
10.7 其它
未經乙方允許, 甲方不得將乙方提供給甲方的任何資料、文件和技術內容透 露給第三方, 否則乙方保留追究甲方責任, 要求甲方賠償由此給乙方造成的損失 的權利。
本技術方案簽字、蓋章生效,本協議與合同具有同等法律效力。如果本協議 條款與商務合同條款沖突,以商務合同條款為準。
本方案未盡事宜,雙方友好協商解決。


需求溝通傾聽客戶需求,了解用戶使用環境和現場工況
方案設計根據現場實際工況,針對性出具解決方案
合同簽訂技術和商務規范確認,簽訂合作協議
產品制作選擇最優質的元器件,嚴格按照技術協議
調試安裝現場規范安裝,靜態動態調試,分析儀運行
售后服務后續維護,持續跟進,終身維修